2960 Hiawatha StreetKansas City, KS66104
Due to the health concerns created by Coronavirus we are offering personal 1-1 online video walkthough tours where possible.




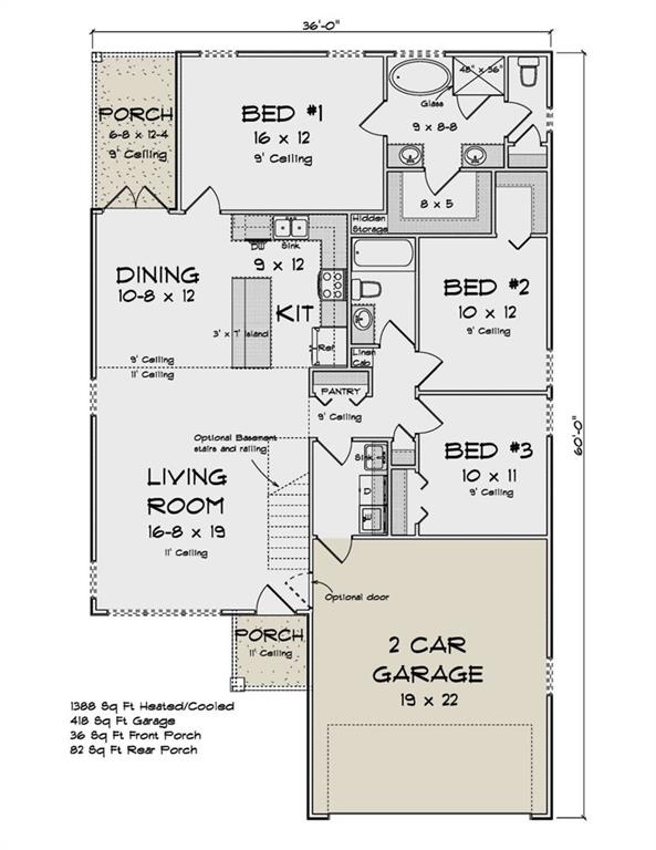
Welcome to "Brookstone" IMR Homes 2 Car Garage Floor Plan. Why Choose a New Construction Home? - Modern Design & Energy Efficiency: Custom options, layouts, open floor plans, and the latest building materials to save on utilities. - Furnished Personalization: Pick finishes, colors, and fixtures to fit your style from day one. - Low Maintenance: New warranties, structural guarantees, and reduced immediate repair costs. - Appreciation Potential: New homes attract modern resale appeal and potential value appreciation. - Free eligibility screening with our preferred lenders who specialize in Kansas City, KS programs. - Step-by-step guidance through application processes and required documents. - Coordinated close with builder. Ongoing local program updates to maximize your benefits. Please call listing agent, Stormie Pryor for buyer's agent details. Showings may be limited due to construction. This is an active construction site - contact agent for progress updates. **Colors and style may vary from the photo shown.** days. Photos/Video of different plan, different decor - For *FINISH QUALITY ONLY.* Builder Uses Own Contract. We have a lot of inventory coming soon, be sure to ask! Estimated Completion May/June 2026
| 10 hours ago | Listing updated with changes from the MLS® | |
| 10 hours ago | Status changed to Active | |
| yesterday | Listing first seen on site |

The information displayed on this page is confidential, proprietary, and copyrighted information of Heartland Multiple Listing Service, Inc. (“Heartland MLS”). Copyright 2026, Heartland Multiple Listing Service, Inc. Heartland MLS and EXP Realty LLC do not make any warranty or representation concerning the timeliness or accuracy of the information displayed herein. In consideration of the receipt of the information on this page, the recipient agrees to use the information solely for the private noncommercial purpose of identifying a property in which the recipient has a good faith interest in acquiring.
Terms of Use
Last checked 2026-02-07 11:37 PM CST


Did you know? You can invite friends and family to your search. They can join your search, rate and discuss listings with you.