1603 Summit StreetKansas City, MO64108
Due to the health concerns created by Coronavirus we are offering personal 1-1 online video walkthough tours where possible.




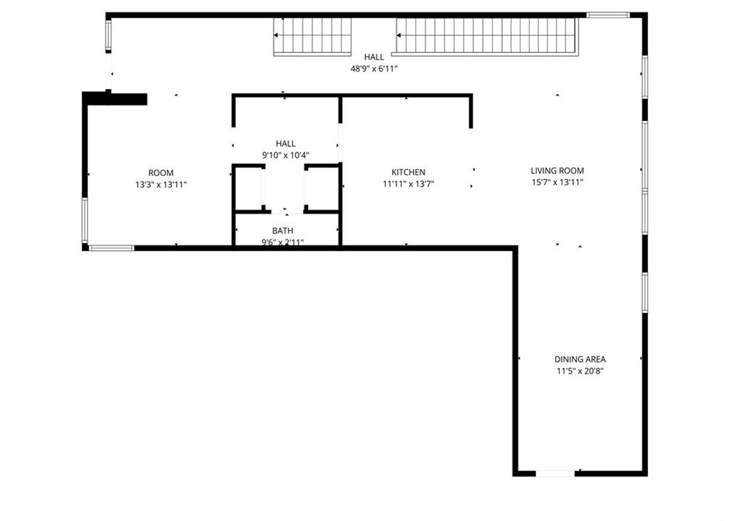
Unlock one of the most versatile properties in KC’s highly sought-after Westside. This striking contemporary residence—previously featured in KC Magazine—offers far more than modern design; it delivers a lifestyle defined by flexibility & intention. Thoughtfully configured as two independent, high-end living spaces, 1603 Summit is ideally suited for multi-generational living, a sophisticated live/work environment, or a high-performing income-producing opportunity. The primary residence lives like a private three-level retreat, designed for both scale and seclusion. The top floor is dedicated to an expansive owner’s suite featuring a spa-inspired bath, generous walk-in closet, and a private terrace with sweeping neighborhood views. The main level serves as the home’s central gathering space, with an open-concept layout that connects the formal dining area, living room, a well-appointed kitchen with abundant cabinetry and pantry, a stylish powder room, and a flexible living or workspace. On the first floor, a secondary suite offers a true retreat with its own bath, private sauna, and direct access to the attached 2-car garage. Designed with entertaining and urban living at its core, the home features seamless flow across all levels, expansive wall space ideal for art display, & dramatic floor-to-ceiling windows that frame the surrounding neighborhood. The adjoining residence is a sleek, modern, single-level unit designed with complete independence in mind. Offering one bedroom, two bathrooms, downtown views, private outdoor space, dedicated laundry, storage, & its own 1-car garage, it’s perfectly positioned as a guest residence, executive office, or premium rental. Located at Summit at Sixteenth, this property offers a true lock-and-leave, maintenance-provided lifestyle. Just outside your door, experience the best of the Westside with its eclectic mix of dining and local retail, all within minutes of the Crossroads Arts District, Downtown, and nearby green spaces.
| 7 hours ago | Listing updated with changes from the MLS® | |
| 19 hours ago | Listing first seen on site |

The information displayed on this page is confidential, proprietary, and copyrighted information of Heartland Multiple Listing Service, Inc. (“Heartland MLS”). Copyright 2026, Heartland Multiple Listing Service, Inc. Heartland MLS and Compass Realty Group do not make any warranty or representation concerning the timeliness or accuracy of the information displayed herein. In consideration of the receipt of the information on this page, the recipient agrees to use the information solely for the private noncommercial purpose of identifying a property in which the recipient has a good faith interest in acquiring.
Terms of Use
Last checked 2026-03-25 11:38 PM CDT

