2291 W Elm TerraceOlathe, KS66061
Due to the health concerns created by Coronavirus we are offering personal 1-1 online video walkthough tours where possible.




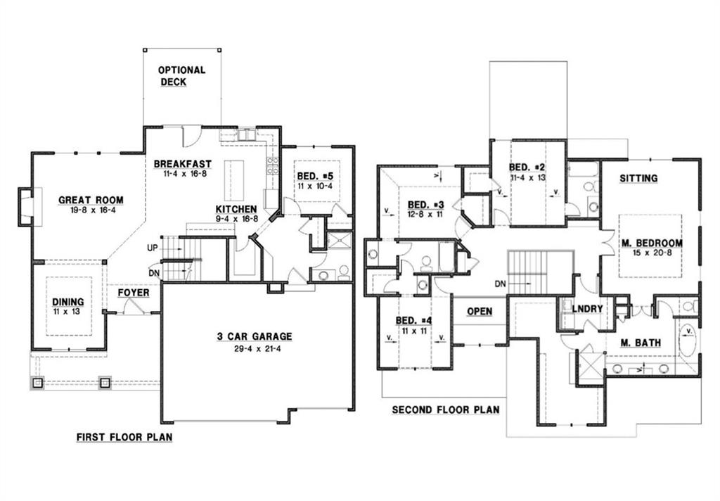
The Levi II offers an exceptional blend of space, style, and functionality with expanded square footage and upgraded finishes throughout. The enlarged kitchen and breakfast area feature custom cabinetry, granite countertops, a large center island with seating, tile backsplash, upgraded faucet, walk-in pantry, and stainless steel appliances—perfect for everyday living and entertaining. Hardwood floors extend through the entry, kitchen, breakfast area, and mud room. A versatile main-level flex room with closet and wood-paneled ceiling provides ideal space for a home office or fifth bedroom. The mud room includes a boot bench and entry closet, while the great room is anchored by a stone direct-vent fireplace with wood mantle. The primary suite is a true retreat, offering a separate sitting area, vaulted ceiling, expanded walk-in closet, and spa-like bath with granite countertops, soaking tub, and walk-in tile shower. All bedrooms feature vaulted ceilings. Upstairs highlights include a loft area with built-in bookshelves, a hallway window for added natural light, and a spacious laundry room with custom cabinetry and granite countertop. Tile flooring is featured in all bathrooms and the laundry room, with Berber carpet on the stairs. Enjoy outdoor living on the covered patio with a full sprinkler system. Located in Prairie Farms, residents enjoy neighborhood amenities including walking trails, pool, playground, and convenient walking distance to Lake Olathe.
| 7 hours ago | Listing updated with changes from the MLS® | |
| 24 hours ago | Listing first seen on site |

The information displayed on this page is confidential, proprietary, and copyrighted information of Heartland Multiple Listing Service, Inc. (“Heartland MLS”). Copyright 2026, Heartland Multiple Listing Service, Inc. Heartland MLS and Keller Williams Realty Partners Inc. do not make any warranty or representation concerning the timeliness or accuracy of the information displayed herein. In consideration of the receipt of the information on this page, the recipient agrees to use the information solely for the private noncommercial purpose of identifying a property in which the recipient has a good faith interest in acquiring.
Terms of Use
Last checked 2026-03-29 11:14 AM CDT

