722 Fallen Leaf DriveBelton, MO64012
Due to the health concerns created by Coronavirus we are offering personal 1-1 online video walkthough tours where possible.




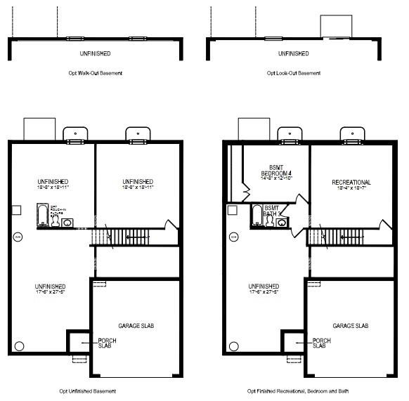
A thoughtfully designed ranch that blends open living with flexible space. The main level offers 3 bedrooms and 2 baths with a bright, open-concept layout that keeps everyone connected. The kitchen truly anchors the home, featuring quartz countertops, a spacious island with seating, and ample walk-in pantry storage. Whether you’re preparing dinner, hosting friends, or helping with homework at the island, you can cook and entertain at the same time without missing a moment. The kitchen flows seamlessly into the living areas, creating a space that feels open, welcoming, and perfect for gathering. The primary suite offers a private retreat with a walk-in closet and en-suite bath, while two additional bedrooms provide space for family, guests, or a home office. Downstairs, the finished basement adds 692 additional square feet, including a fourth bedroom and full bathroom. The lower-level living area is ideal for a second family room, guest suite, or game space, giving this home the versatility today’s buyers appreciate. With Smart Home technology, energy-efficient features, and a new home warranty, the Harmony offers single-level convenience with room to grow. A furnished Harmony model is available to tour in a nearby community if you’d like to experience the layout and design in person.
| 7 hours ago | Listing updated with changes from the MLS® | |
| 24 hours ago | Listing first seen on site |

The information displayed on this page is confidential, proprietary, and copyrighted information of Heartland Multiple Listing Service, Inc. (“Heartland MLS”). Copyright 2026, Heartland Multiple Listing Service, Inc. Heartland MLS and DRH Realty of Kansas City, LLC do not make any warranty or representation concerning the timeliness or accuracy of the information displayed herein. In consideration of the receipt of the information on this page, the recipient agrees to use the information solely for the private noncommercial purpose of identifying a property in which the recipient has a good faith interest in acquiring.
Terms of Use
Last checked 2026-03-29 11:14 AM CDT

